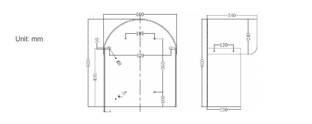
Designed for use in noisy areas and harsh environments Extremely robust Good acoustic qualities and highly visibleTo protect inside telephone waterproof Popular in noisy factories such as newspaper print rooms.